Work
Services
Contact
Work
Services
Contact
Laurdine

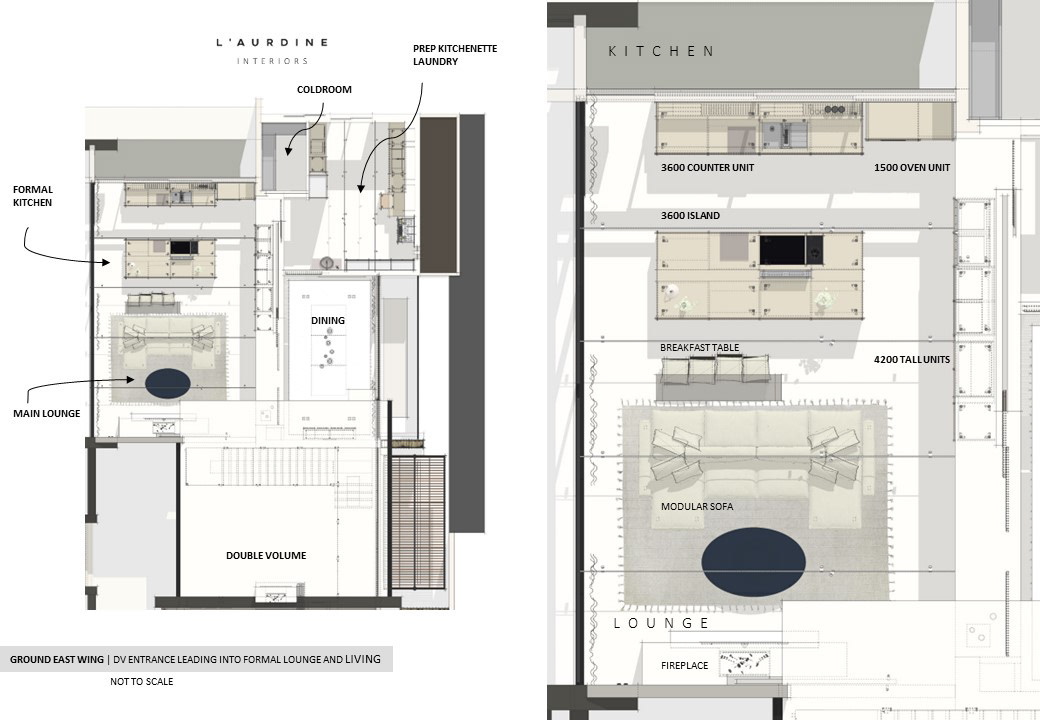
Mjekevu Residence , Kitchen

client presentation

You may also like

Athol Residence, Outdoor Lanai
2025
Mjekevu Residence, Interior Lounge / Dining
2022
Atholholm Residence
2025
Hyde Park Residence , Kitchen
2023
Mjekevu Residence , Main Suite
2022
Gantsho Residence , Interior Living
2022
Mjekevu Residence , Main Wardrobe
2022
Mjekevu Residence , Formal Lounge
2022
Hyde Park Residence, Main Suite
2024
Raphael Residence, Linksfield
2023
↑Back to Top
Powered by Adobe Portfolio